Nos preocupa tu privacidad En pisos.com utilizamos cookies propias y de terceros para dar un servicio satisfactorio mediante cookies técnicas, de personalización y para fines analíticos. pulsa AQUÍ para más información. Puedes aceptar todas las cookis pulsando el botón "aceptar" o configurarlas o rechazar su uso pulsando
Aceptar Rechazar todas Configurar
Casa en venta en Zona Hospital HM Torrelodones
  • 4HabitacionesHabs
  • 3Baños
  • 255 m2
750.000 €
Solicitar información del inmueble
Enviar
Llámanos ahora
call
616994696

Casa en venta en Zona Hospital HM Torrelodones

(Zona Hospital HM Torrelodones. Torrelodones)

REF.: 001815 750.000 €
Contactar ahora
Contactar ahora 616994696
call
Llamar
email
Contactar
call
Llamar
email
Contactar
Detalles del inmueble
  • Precio 750.000 €
  • Referencia 001815
  • Dirección Avenida Fontanilla
  • Zona Zona Hospital HM Torrelodones -
  • Parking Si
  • Piscina Si
  • Habitaciones 4
  • Baños 3
  • Superficie total 255 m2
  • Superficie solar 100 m2
  • Superficie útil 255 m2
  • Certificación energética
    Clasificación Disponible
    Emisiones 50 Kg CO2/m2 año
    Ver etiqueta energética
    250
    50
  • Descripción Vivienda adosada situada en una zona residencial consolidada de Torrelodones, uno de los municipios más demandados de la Sierra Noroeste de Madrid por su calidad de vida y excelentes comunicaciones. El entorno ofrece tranquilidad, ambiente familiar y todos los servicios necesarios como colegios públicos y privados, supermercados, centro de salud, instalaciones deportivas y amplia oferta de restauración. Dispone de estación de Cercanías y líneas de autobús hacia Madrid, además de acceso directo a la A-6, lo que permite llegar a la capital en aproximadamente 25-30 minutos.

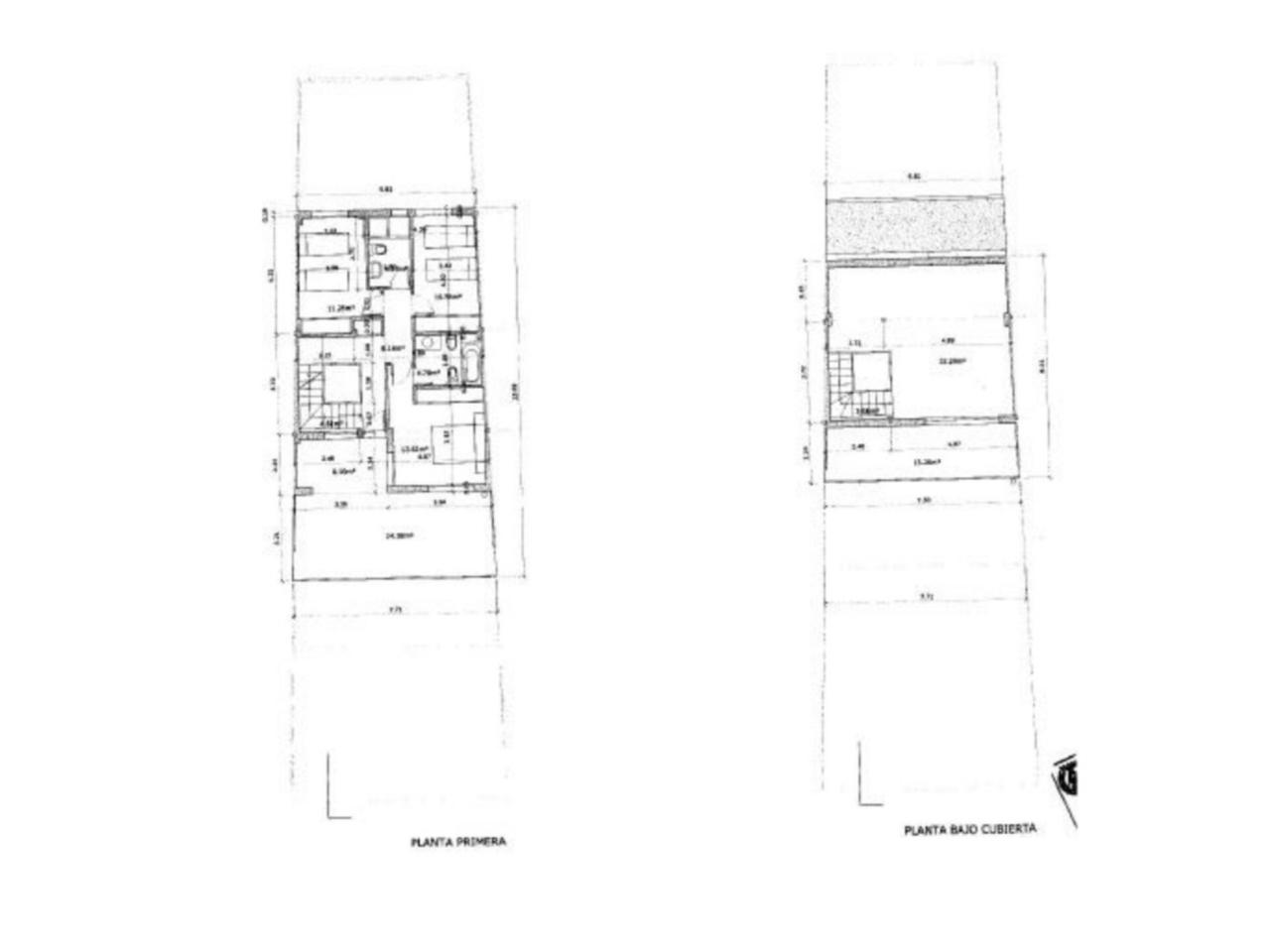
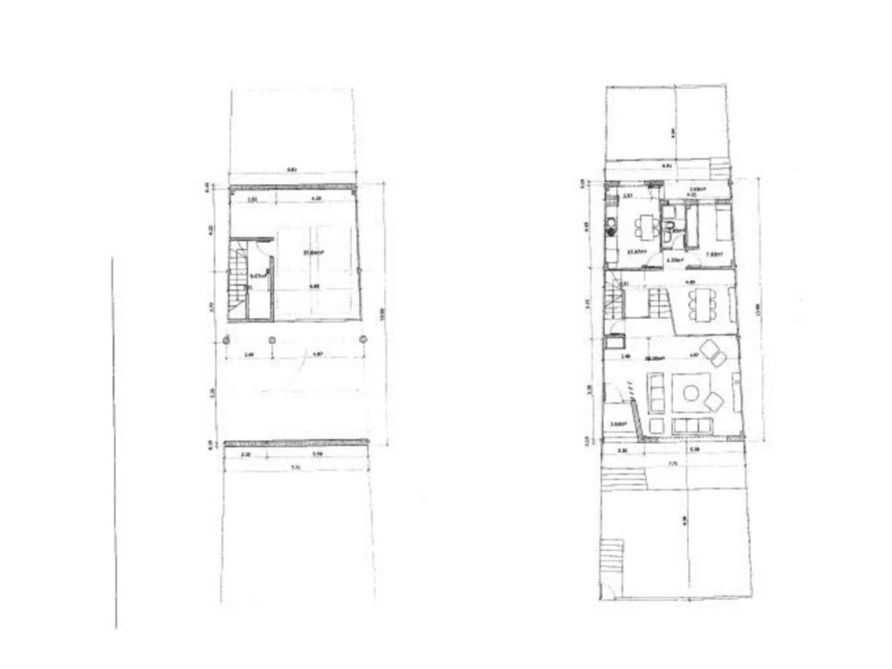
    La vivienda fue construida en 2008 según catastro y cuenta con una superficie de 225 m2 construidos sobre parcela de 100 m2. Se distribuye en cuatro plantas. En el sótano dispone de garaje con capacidad para dos vehículos. En la planta baja encontramos un amplio salón comedor en dos alturas con chimenea y acceso a la terraza frontal y su respectivo patio, cocina independiente, un dormitorio en planta y un aseo con ducha, además de salida al patio trasero. La primera planta alberga tres dormitorios y dos cuartos de baño, siendo el principal tipo suite, y cuenta también con una amplia terraza. En la última planta se ubica una buhardilla con acceso a terraza, aportando un espacio adicional muy versátil.

    La vivienda dispone de suelos de tarima y gres, ventanas de aluminio con climalit y piscina comunitaria en las zonas comunes. Actualmente no cuenta con sistema de calefacción (anteriormente gas natural).

    Precisa actualización y reposición de algunos elementos interiores, lo que permite adaptarla completamente al gusto del comprador y actualizar calidades. Una excelente oportunidad para reformar y personalizar en una de las zonas más atractivas y consolidadas del noroeste de Madrid.
Dirección

Avenida Fontanilla
Zona Hospital HM Torrelodones

Teléfono

616994696

Fax

000

Email

aneirosgestion@hotmail.com

Simula tu hipoteca

Calcular